EMERGENCY FOOD HAMPERS
Neoma Branch
Exciting News!
You may have seen us in the news recently, that’s because the Calgary Food Bank is opening a new branch!
This is in response to new research, skyrocketing demand and an updated mission that has us focusing on food accessibility. The branch will be located at 706 7 Avenue S.W, in the Neoma building, just off the 7th street CTrain station. This location was chosen for two main reasons:
- The Calgary Food Bank served 6,300 unique clients in one year from the Beltline area.
- Approximately 25% of our clients use transit to pick up their hampers.
This map illustrates how the demand for food support is concentrated in the downtown area.
The Beltline has the largest low-income population in Calgary with 18,900 people living below the poverty line. Only 33% of them are accessing our Emergency Food Hamper program
This area’s population is expected to grow by 8% by 2028, meaning we can reasonably expect that 10,000 more hampers will be needed in this area at that time.
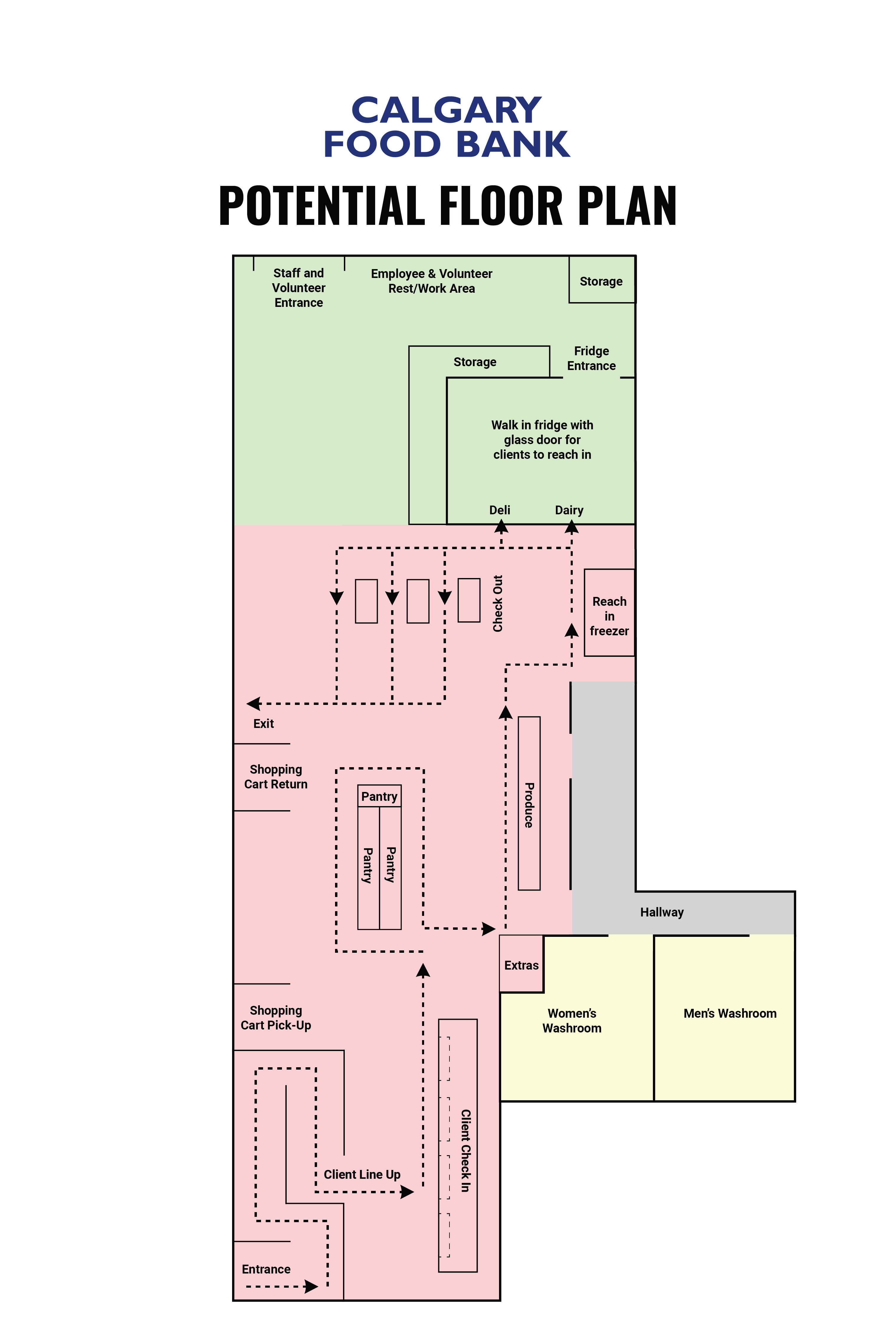
We have already implemented a choice model of distribution for our main location, but we are looking to take this a step further at our new branch.
We are looking to implement a shopping model, setting up the distribution area like a store and letting clients “shop” for their own hampers.
You Might Also Like Reading...
Client Choice Distribution Model 1 Year Anniversary
In October of 2024, we implemented our choice model of distribution, which allows clients to choose the items they take home with them through a points system.
Links between housing and food insecurity
During the cold snap of February 2024, I met with a gentleman – I’ll call Mike – in a community centre in the South of Calgary where he was hanging out during the day trying to stay warm.
Calgary Transit Community Outreach Team
Partnering with Calgary Transit’s Community Outreach Team helps ensure our food connects people with long-term support for underlying issues.




